18.05.2026
Toimistotila B2-2, n. 579 m2 - Keva Toimitilat
Keva Toimitilat - Tilaa pienille ja isoille ideoille.
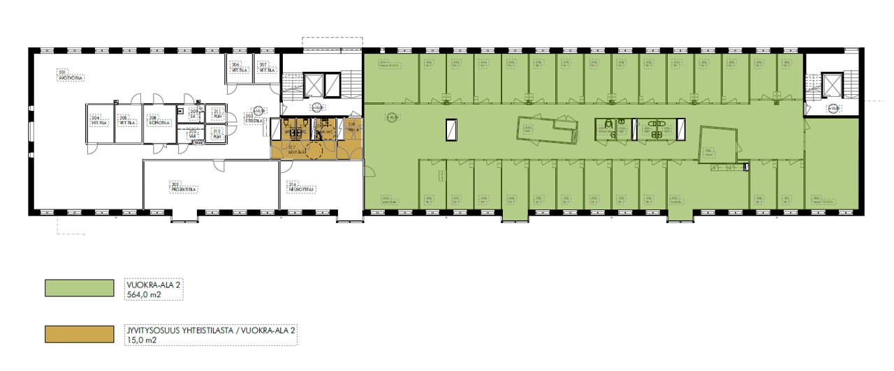
Toimistotila B2-2, n. 579 m2
| Yhtiö: |
Kiinteistö Oy Turun Kaakelinna
|
| Tilatyyppi: | Toimistotila |
| Huoneistoala: | 579 m2 |
| Ilmoitustyyppi: | Vuokrataan |
| Vapautumispäivä: | Heti vapaa |
Toimistotilat Aurajoen varrella
Kiinteistö Oy Turun Kaakelinna koostuu kahdesta osoitteessa Linnankatu 50−52 sijaitsevasta rakennuksesta, jotka on rakennuttanut vuokranantajana toimiva Keva. Molemmat rakennukset ovat valmistuneet vuonna 2002.
Kiinteistö on kytketty Turku Energian kaukojäähdytysverkkoon, joka mahdollistaa erinomaisten sisäilmaolosuhteiden toteuttamisen muutostöiden yhteydessä.
Kaakelinna sijaitsee Turun keskusta-alueella Kakolanmäen ja Aurajoen välissä. Saavutettavuus on erinomainen niin joukkoliikenteellä, pyörällä kuin henkilöautolla. Etäisyys lähimmälle paikallisliikenteen bussipysäkille on noin 50 metriä ja Kauppatorille kävelee varttitunnissa.
18.05.2026
Toimistotila B2-2, n. 579 m2 - Keva Toimitilat
Lisätiedot
| Tilatyyppi: | Toimistotila |
| Kiinteistö: |
Kiinteistö Oy Turun Kaakelinna
|
| Osoite: |
Linnankatu 50
|
| Hissi: | kyllä |
| Vuokraan sisältyy: | lämmitys |
| Sijaintikerros: | 2 |
| Rakennusvuosi: | 2002 |
| Pysäköinti: | Pysäköintitilaa rakennuksen kellarikerroksissa ja kadunvarsilla |
| Tyyli: | Moderni |
| Vapautumispäivä: | Heti vapaa |