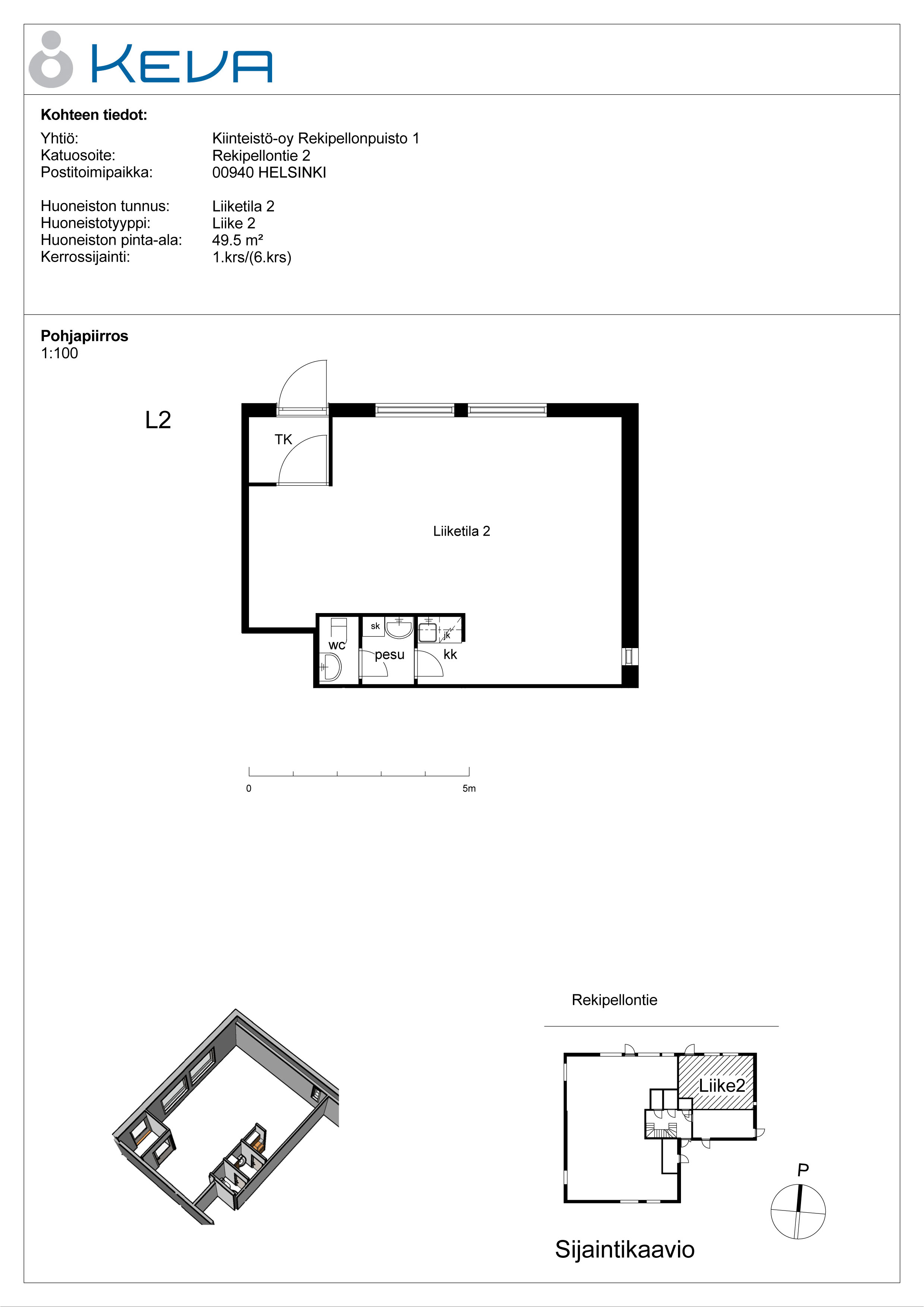
Liiketila 2
Yhtiö: Kiinteistö-oy Rekipellonpuisto 1
Huoneistoala: 49.5m2
Ilmoitustyyppi: vuokrataan
Vapautumispäivä: Heti vapaa
Kiinteistö Oy Rekipellonpuisto 1 tarjoaa erinomaisen sijainnin Helsingin Mellunkylässä. Kiinteistö on vain kivenheiton päässä Itäkeskuksen monipuolisista palveluista ja loistavien liikenneyhteyksien äärellä. Tämä asuin- ja liikekiinteistö yhdistää arjen helppouden ja yritystoiminnan mahdollisuudet. Rakennuksen ensimmäisessä kerroksessa sijaitsee kahdeksan liiketilaa, joissa toimii muun muassa lähikauppa ja päiväkoti.
Matkaa lähimmälle metroasemalle on vain 600 metriä ja Helsingin keskustaan pääsee sujuvasti noin 20 minuutissa. Kiinteistön pihatontilla on tarjolla vuokrattavia autopaikkoja, mikä tekee liikkumisesta entistä vaivattomampaa.
Perustiedot |
|
|---|---|
| Kiinteistö: | Kiinteistö-oy Rekipellonpuisto 1 |
| Osoite: | Rekipellontie 2, 00940 Helsinki |
| Vuokraan sisältyy: | lämmitys |
| Sijaintikerros: | 1/6 |
| Rakennusvuosi: | 1991 |
| Vapautumispäivä: | Heti vapaa |
| Pohjaratkaisut |
Pohjakuva |


















