Siirry sisältöön

Suosikit

Tässä valitsemasi suosikit.

Kiinnostuitko?

Markus Mikkola
020 61
[email protected]

Ota yhteyttä

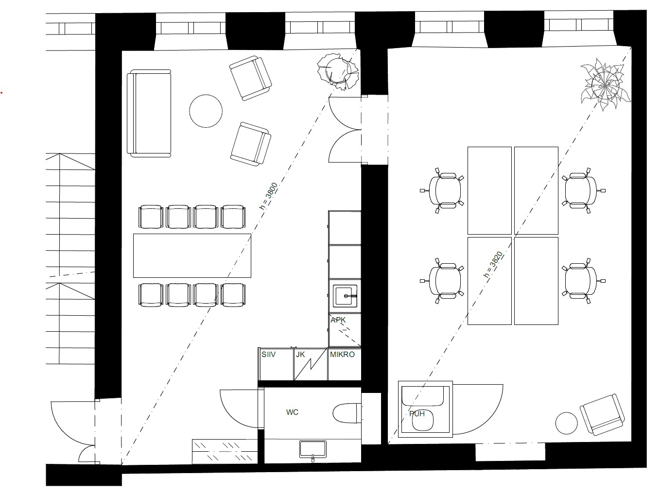
Upea pientoimisto – 3.krs – 67,5m2

Yhtiö: Kiinteistö Oy Mikonkatu 2 - Pohjoisesplanadi 35

Huoneistoala: 67.5m2

Ilmoitustyyppi: vuokrataan

Vapautumispäivä: 01.05.2026

Tämä edustava toimistohuoneisto sijaitsee kiinteistön 3. kerroksessa, arvostetun Wreden pasaasin puolella. Suuret ikkunat tulvivat luonnonvaloa sisään ja korostavat huoneiden poikkeuksellista korkeutta, luoden avaran ja inspiroivan kokonaisuuden.

Huoneisto on peruskorjattu kauttaaltaan korkeatasoisesti vanhaa, arvokasta kiinteistöä kunnioittaen. Uudistuksessa yhdistyvät laadukkaat, tyylikkäät materiaalit sekä nykyaikaiset ratkaisut, jotka vastaavat vaativankin käyttäjän tarpeita. Lopputuloksena syntyy elegantti ja toimiva tila, jossa historia ja moderni design elävät saumattomasti rinnakkain. Tarjolla siis ainutlaatuisen mahdollisuus ottaa käyttöön täysin uudistettu tila yhdessä Helsingin halutuimmista ympäristöistä.
.

Merkittävä osa Helsingin ydinkeskustan rakennushistoriaa

Gaselli-korttelin eteläpäädyssä oleva kiinteistö on loistavalla paikalla Helsingin ydinkeskustassa viihtyisän Esplanadin puistokadun varrella. Tässä K.A. Wreden suunnittelemassa ja vuonna 1888 valmistuneessa arvokiinteistössä tehdyt perusparannustyöt on toteutettu kiinteistön arkkitehtuuria ja arvokasta historiaa kunnioittaen. Uudet nykyaikaiset toimistot ovat vertaansa vailla tunnelmallisessa ja arvokkaassa rakennuksessa.

Pohjoisesplanadin ja Mikonkadun kulmaan sijoittuvassa kiinteistössä on laadukkaita toimistotiloja monen kokoisille yrityksille. Kohteessa on tehokkaat tilaratkaisut, jotka voi joustavasti hyödyntää monitilaympäristönä. Tiloissa on koneellinen ilmanvaihto ja jäähdytys.

Lähin autoilijoita palveleva pysäköintihalli sijaitsee Kluuvissa, sisäänajo Kaisaniemestä tai Fabianinkadulta. Julkisen liikenteen yhteydet ovat vain lyhyen kävelymatkan päässä.

Perustiedot

Kiinteistö: Kiinteistö Oy Mikonkatu 2 - Pohjoisesplanadi 35
Osoite: Mikonkatu 2, 00100 Helsinki
Hissi: kyllä
Vuokraan sisältyy: lämmitys
Sijaintikerros: 3/6
Rakennusvuosi: 1888
Tyyli: Arvokohde
Vapautumispäivä: 01.05.2026
Pohjaratkaisut Pohjapiirustus
Liitetiedostot Pohjakuva

Kiinnostuitko?

Markus Mikkola
020 61
[email protected]

Ota yhteyttä

Kiinteistö Oy Mikonkatu 2 - Pohjoisesplanadi 35 muut vapaat toimitilat

Not available yet