Toimistotila 7.krs
Yhtiö: Kiinteistö Oy Helsingin Kuparitalo
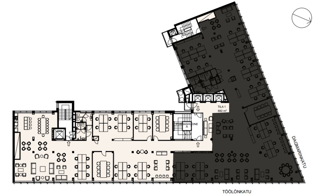
Huoneistoala: 882m2
Ilmoitustyyppi: vuokrataan
Vapautumispäivä: Heti vapaa
Ajattoman tyylikäs toimistokiinteistö Etu-Töölön sydämessä
Kuparitalo on Helsingin Etu-Töölössä sijaitseva ikoninen toimistokiinteistö, jossa historiallinen arvokkuus kohtaa modernin eleganssin. Vuonna 1957 alun perin Outokumpu Oy:n pääkonttoriksi valmistunut rakennus huokuu ajattomuutta, laatua ja arvostusta – ominaisuuksia, jotka tekevät siitä ainutlaatuisen työympäristön vaativille yrityksille.
Rakennuksen kuparinen julkisivu, sisätilojen hienostuneet yksityiskohdat ja huolella säilytetty alkuperäinen arkkitehtuuri kertovat tarinaa suomalaisesta teollisuusperinteestä ja muotoilun huippuosaamisesta. Samalla elegantisti uudistetut toimistotilat tarjoavat nykyaikaiset puitteet tehokkaaseen ja viihtyisään työskentelyyn.
Kuparitalon tilat ovat muunneltavissa ja skaalautuvia, ja ne soveltuvat erinomaisesti niin pienille tiimeille kuin suuremmille organisaatioille. Vuokralaiset voivat valita toimistonsa sisustuksen kolmesta huolella suunnitellusta teemasta:
- Philip – klassinen New York -henkinen tyyli
- Märta – raikas ja linjakas funkkis
- Arne – lämminhenkinen skandinaavinen 50-luku
Kahdeksaan kerrokseen sijoittuvat tilat tarjoavat inspiroivan ja edustavan ympäristön, jossa työnteko on sekä tehokasta että elämyksellistä.
Sijainti Etu-Töölön kulttuuririkkaassa ja arvostetussa kaupunginosassa takaa loistavat yhteydet ja palvelut. Rautatieasema ja Kampin keskus ovat vain noin kymmenen minuutin kävelymatkan päässä, ja lähialueelta löytyvät niin ravintolat, kahvilat, museot kuin eduskunta ja muut keskeiset instituutiot.
Kuparitalo on täydellinen valinta yritykselle, joka etsii tyylikästä, toimivaa ja arvokasta toimitilaa Helsingin paraatipaikalta – paikasta, jossa historia ja nykyaika kohtaavat saumattomasti.
Tutustu tiloihin virtuaalisesti:
- 8.krs neuvottelumaailma
- Saunaosasto
- Kuntosali
- Aulatilat
- 2.krs neuvottelutilat ja lounge
- 3.krs neuvottelutilat ja lounge
Perustiedot |
|
|---|---|
| Kiinteistö: | Kiinteistö Oy Helsingin Kuparitalo |
| Osoite: | Töölönkatu 4, 00100 Helsinki |
| Hissi: | kyllä |
| Vuokraan sisältyy: | lämmitys |
| Sijaintikerros: | 7/8 |
| Rakennusvuosi: | 1957 |
| Pysäköinti: | 5 autohallipaikkaa, 14 pihapaikkaa. Autopaikkoja vuokrattavissa naapurikiinteistöltä ja Finlandiatalon parkkihallista. |
| Tyyli: | Moderni |
| Vapautumispäivä: | Heti vapaa |
| Pohjaratkaisut |
Pohjapiirustus |














